Mẫu nhà phố hiện đại 3 tầng 4x11m đang được các gia đình trẻ lựa chọn xây dựng nhà tại TP.HCM. Mẫu nhà 1 trệt 2 lầu mặt tiền 4m là thiết kế tiêu biểu, mang đến không gian sống tiện nghi, sang trọng và tối ưu công năng trên diện tích đất nhỏ. Với phong cách kiến trúc hiện đại, mặt tiền tinh tế và công năng được bố trí khoa học, đây là một giải pháp xây dựng nhà ở lý tưởng tại đô thị mà nhiều chủ đầu tư không nên bỏ qua.
Mẫu nhà 3 tầng 4x11m – Điểm nhấn phong cách kiến trúc hiện đại
Thiết kế theo phong cách hiện đại, mẫu nhà sử dụng hình khối vuông vức, đường nét rõ ràng, đề cao tính đơn giản nhưng sang trọng. Mặt tiền là điểm nhấn nổi bật của công trình – được tạo hình tinh tế với các mảng tường phẳng, xen kẽ vật liệu ốp gạch màu đen và các chi tiết lam ngang giúp tổng thể trở nên cân đối và ấn tượng.
Nhờ cách phối hợp vật liệu, màu sắc và ánh sáng hợp lý, mẫu nhà 1 trệt 2 lầu 4x11m mang đến vẻ đẹp hiện đại, thanh thoát nhưng không kém phần ấm cúng – một lựa chọn hoàn hảo cho các gia đình yêu thích phong cách sống hiện đại tại TP.HCM.

Mẫu Nhà 3 Tầng 4x11m – Giải Pháp Cho Cuộc Sống Tiện Nghi
>>> Tham khảo đơn giá xây dựng nhà TPHCM:
Bố trí công năng khoa học, tiện nghi
Với diện tích 4x11m, kiến trúc sư Việt Nhật Group đã nghiên cứu kỹ lưỡng để đưa ra phương án bố trí công năng hợp lý, đảm bảo sự tiện nghi, thoải mái và đáp ứng tốt nhu cầu sinh hoạt của từng thành viên trong gia đình.
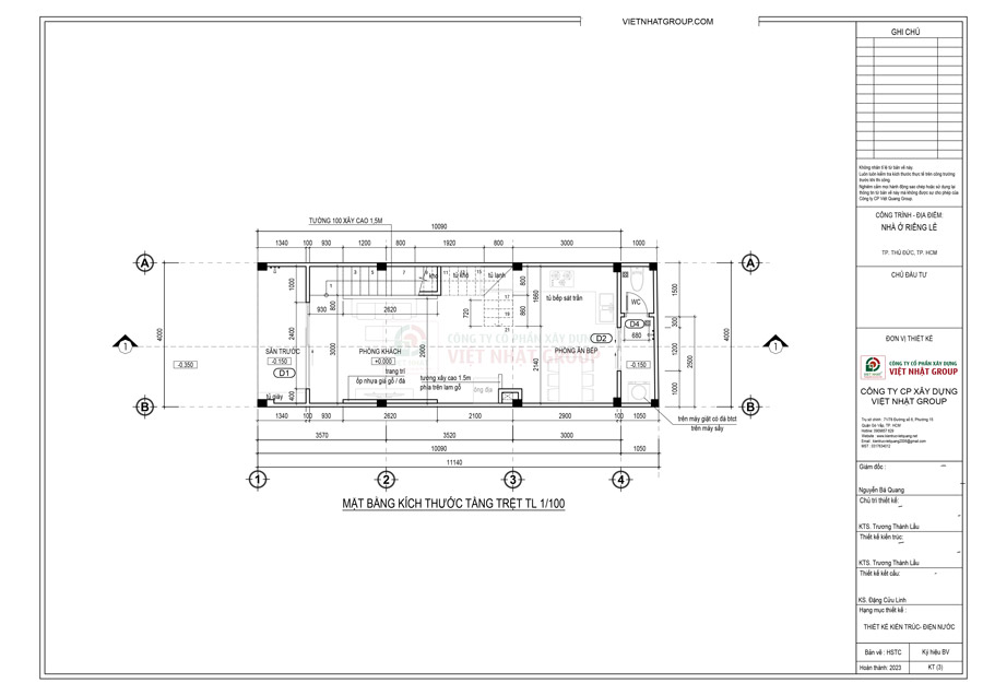
Tầng trệt – Không gian sinh hoạt chung tiện nghi
Bước vào cổng chính là sân trước nhỏ gọn, nơi bố trí tủ giày ngoài trời, giúp giữ vệ sinh và thuận tiện khi ra vào. Phòng khách được đặt ngay phía trong với thiết kế mở, liên thông với khu vực phòng bếp – ăn, tạo cảm giác rộng rãi và kết nối giữa các không gian sinh hoạt.
Dưới gầm cầu thang, kiến trúc sư tận dụng làm tủ chứa đồ đa năng, giúp ngôi nhà luôn gọn gàng và tối ưu diện tích. Cuối nhà là sân sau, được bố trí khu vực giặt phơi và nhà vệ sinh, đảm bảo tính riêng tư và thuận tiện trong sinh hoạt.

Tầng trệt – Không gian sinh hoạt chung tiện nghi
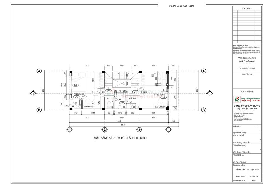
Lầu 1 – Không gian nghỉ ngơi ấm cúng cho gia đình
Tầng này gồm phòng ngủ ba mẹ và phòng ngủ bé gái, cả hai đều có cửa sổ lớn hướng ra ngoài, đón ánh sáng và gió trời tự nhiên. Phòng tắm và nhà vệ sinh được đặt ngoài hành lang, tách biệt với khu vực nghỉ ngơi nhằm đảm bảo sự thông thoáng, sạch sẽ và thuận tiện cho việc sử dụng.

Lầu 1 – Không gian nghỉ ngơi ấm cúng cho gia đình
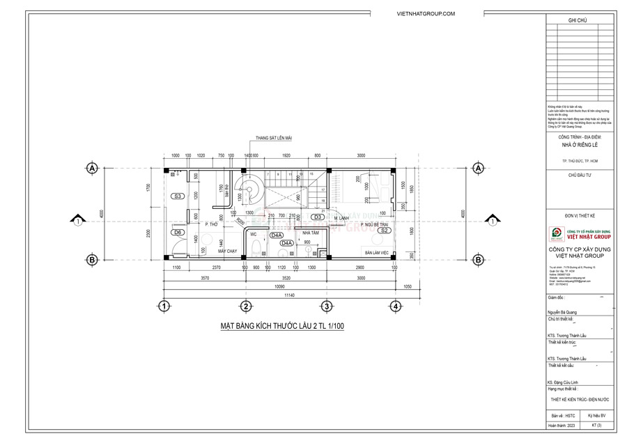
Lầu 2 – Không gian đa năng kết hợp thư giãn
Lầu 2 được bố trí phòng ngủ bé trai, phòng thờ trang nghiêm và phòng tập thể dục – nơi các thành viên có thể rèn luyện sức khỏe mỗi ngày. Nhà vệ sinh được thiết kế tương tự như tầng 1, giúp tiết kiệm diện tích và dễ dàng trong thi công hệ thống kỹ thuật.
Giếng trời kết hợp cầu thang bộ là điểm nhấn độc đáo trong thiết kế. Nhờ sự liên kết giữa hai yếu tố này, ánh sáng và không khí được lưu thông dễ dàng xuyên suốt các tầng, giúp không gian bên trong luôn mát mẻ và thông thoáng, ngay cả trong những ngày nắng nóng tại TP.HCM.

Lầu 2 – Không gian đa năng kết hợp thư giãn
Ưu điểm nổi bật của mẫu nhà 3 tầng 4x11m
- Tối ưu diện tích đất nhỏ: Thiết kế phù hợp với lô đất mặt tiền hẹp, chiều sâu vừa phải, đảm bảo công năng đầy đủ mà vẫn thoáng đãng.
- Kiến trúc hiện đại, sang trọng: Mặt tiền tối giản, phối hợp vật liệu tinh tế giúp ngôi nhà trở nên nổi bật và bền đẹp theo thời gian.
- Không gian sống tiện nghi: Mỗi tầng đều có chức năng riêng, đáp ứng đầy đủ nhu cầu sinh hoạt, nghỉ ngơi và giải trí.
- Tận dụng ánh sáng tự nhiên: Giếng trời và hệ cửa kính lớn giúp tiết kiệm năng lượng, tạo cảm giác rộng rãi và dễ chịu.
- Chi phí xây dựng hợp lý: So với các mẫu nhà lớn, diện tích 4x11m giúp chủ đầu tư tiết kiệm chi phí xây nhà nhưng vẫn có một tổ ấm khang trang, hiện đại.
Mẫu nhà 3 tầng 4x11m – Giải pháp lý tưởng cho chủ đầu tư tại TP.HCM
Trong điều kiện quỹ đất ngày càng hạng chế, đặc biệt ở các khu đô thị như TP.HCM, mẫu nhà 1 trệt 2 lầu diện tích 4x11m là lựa chọn thông minh cho những gia đình muốn sở hữu một không gian sống đầy đủ tiện nghi, thẩm mỹ và phù hợp ngân sách.
Công trình đáp ứng trọn vẹn các tiêu chí, đẹp – thoáng – tiện nghi – tiết kiệm chi phí, đồng thời dễ dàng tùy biến công năng theo nhu cầu từng gia đình. Dù diện tích không quá lớn, nhưng nhờ cách bố trí hợp lý, mỗi không gian đều được khai thác tối đa công năng sử dụng mà vẫn đảm bảo tính thẩm mỹ tổng thể.
Không chỉ phù hợp làm nhà ở gia đình, mẫu thiết kế nhà phố 3 tầng này còn có thể tích hợp cho thuê hoặc kết hợp kinh doanh nhỏ, tùy theo vị trí đất xây dựng và nhu cầu xây nhà của chủ đầu tư.
Tư vấn xây nhà trọn gói tại Việt Nhật Group
Hơn 13 năm kinh nghiệm trong lĩnh vực thiết kế – thi công trọn gói tại TP.HCM, Việt Nhật Group luôn mang đến cho khách hàng những giải pháp xây dựng tối ưu nhất, từ khâu lên ý tưởng, thiết kế kiến trúc, xin phép xây dựng đến thi công hoàn thiện.
Khi lựa chọn Việt Nhật Group, chủ đầu tư sẽ nhận được:
- Tư vấn phương án thiết kế phù hợp với diện tích, phong thủy và ngân sách.
- Bản vẽ kỹ thuật chi tiết, tối ưu kết cấu – công năng – thẩm mỹ.
- Quy trình thi công chuyên nghiệp, đảm bảo chất lượng và tiến độ.
- Cam kết chi phí minh bạch, bảo hành công trình dài hạn, mang lại sự an tâm tuyệt đối cho khách hàng.
Mẫu nhà ở hiện đại 3 tầng 4x11m là giải pháp hoàn hảo cho các gia đình trẻ tại TP.HCM muốn sở hữu một ngôi nhà khang trang, hiện đại và tiết kiệm chi phí. Thiết kế không chỉ đảm bảo tính thẩm mỹ mà còn mang lại sự tiện nghi, thoáng đãng và phù hợp với lối sống năng động của người Việt hiện nay.
Nếu bạn đang có ý định xây dựng nhà phố hiện đại, hãy liên hệ Việt Nhật Group để được tư vấn miễn phí phương án thiết kế và báo giá xây nhà trọn gói chi tiết – giúp bạn hiện thực hóa ngôi nhà mơ ước một cách hoàn hảo nhất.
Từ khóa: xây nhà trọn gói | giá xây nhà | sửa nhà trọn gói | báo giá sửa nhà trọn gói | xây dựng phần thô và nhân công hoàn thiện | giá xây nhà phần thô




























































Haha, mẫu nhà 4x11m này đúng là siêu phẩm cho quỹ đất khiêm tốn ở TP.HCM! Thiết kế thông minh, tận dụng tối đa mọi ngóc ngách, từ tủ giày ngoài trời đến giếng trời thông minh như cây điều hòa nhiệt độ giữa lòng thành phố nắng nóng. Kiến trúc hiện đại mà không hề cồng kềnh, giá cả hợp lý nữa chứ. Chỉ mong các gia đình xây nhà không bị lên đời giữa chừng như mấy vụ phá hoại gần đây trên mạng là được! 😄 Tất nhiên, việc thi công chuyên nghiệp và chất lượng còn phải chờ kiểm chứng qua thời gian.