Trong bối cảnh quỹ đất đô thị ngày càng hạn hẹp, những lô đất có diện tích khoảng 40m2 (5x8m) đang trở nên phổ biến. Làm thế nào để xây dựng nhà đẹp với không gian sống vừa tiện nghi, sang trọng, lại vừa tối ưu chi phí xây nhà? Mẫu nhà 3 tầng rưỡi 5x8m, quy mô xây dựng 1 trệt lửng 2 lầu tum sân thượng dưới đây chính là câu trả lời lý tưởng nhất cho gia đình bạn.

Mẫu nhà 1 trệt lửng 2 lầu tum sân thượng 5x8m
Mẫu thiết kế nhà hiện đại 3 tầng rưỡi 5x8m
Điểm nhấn ấn tượng đầu tiên của mẫu nhà 5x8m này chính là phong cách kiến trúc hiện đại. Với mặt tiền rộng 5m, kiến trúc sư đã khéo léo sử dụng các hình khối vuông vức, tối giản nhưng không đơn điệu. Màu trắng tinh khôi kết hợp cùng màu nâu trầm của lam gỗ tạo nên sự tương phản hài hòa, sang trọng. Hệ thống cửa kính cường lực khung nhôm xingfa cao cấp giúp tối ưu ánh sáng tự nhiên, tạo cảm giác không gian mở rộng hơn so với diện tích thực tế. Các bồn hoa nhỏ tại ban công và khu vực sân thượng mang lại sức sống, giúp điều hòa không khí cho nhà phố.
>>> Tham khảo đơn giá xây dựng tại TPHCM: Xây nhà trọn gói uy tín

Mẫu nhà 1 trệt lửng 2 lầu tum sân thượng 5x8m
Thiết kế không gian nhà 1 trệt lửng 2 lầu tum sân thượng 5x8m
Với chiều sâu chỉ 8m, việc bố trí cầu thang và khu vực chức năng đòi hỏi sự tính toán kỹ lưỡng để tránh cảm giác bí bách. Tham khảo mẫu nhà 1 trệt lửng 2 lầu tum sân thượng, diện tích 5x8m được KTS Việt Nhật Group bố trí công năng như sau:
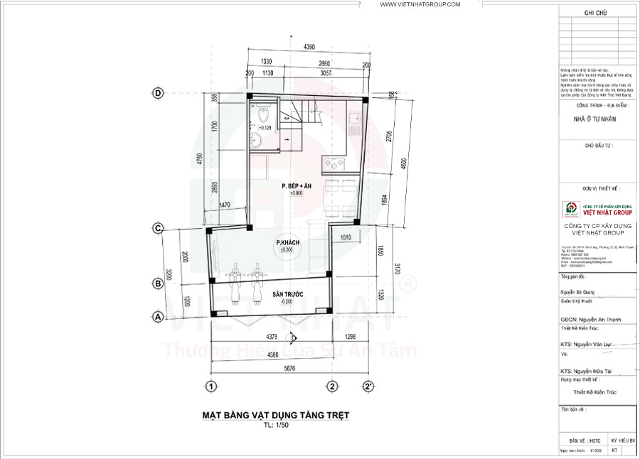
Tầng trệt – Không gian sinh hoạt chung gia đình
Bước vào không gian tầng trệt của mẫu nhà 3 tầng rưỡi 5x8m, bạn sẽ ngay lập tức cảm nhận được sự bài trí thông minh, xóa tan mọi định kiến về diện tích nhỏ. Từ ngoài và là một khoảng sân trước vừa đủ để tạo lớp đệm xanh ngăn cách với khói bụi, đồng thời là nơi để xe tiện lợi cho gia đình. Bước qua cánh cửa lớn là phòng khách ngập trần ánh sáng với trần cao thoáng đãng, nơi bạn có thể thư giãn trên những bộ sofa hiện đại và đón tiếp bạn bè trong một không gian đầy tinh tế.
Tiếp nối sự liền mạch đó, khu vực bếp và phòng ăn được thiết kế mở, tạo nên sự kết nối ấm cúng cho những bữa cơm gia đình. Hệ tủ bếp chữ L được bố trí sát tường một cách gọn gàng, kết hợp cùng bàn ăn tinh giản giúp lối đi luôn rộng rãi. Điểm nhấn của sự tối ưu chính là nhà vệ sinh được khéo léo “giấu” dưới chân cầu thang, vừa đảm bảo tính thẩm mỹ, kín đáo, vừa tận dụng triệt để mọi ngóc ngách dư thừa. Tổng thể tầng trệt là một dòng chảy không gian hài hòa, nơi mà sự tiện nghi và nét đẹp hiện đại giao thoa hoàn hảo trong từng mét vuông.

Cách bố trí công năng tầng trệt
>>> Tham khảo đơn giá xây dựng tại TPHCM tại đây:
- Báo giá xây nhà trọn gói TPHCM 2026
- Bảng dự toán sửa chữa nhà
- Giá xây nhà phần thô
Tầng lửng – Mở rộng không gian sinh hoạt
Nếu tầng trệt là sự sôi động của những sinh hoạt thường nhật, thì tầng lửng lại mở ra một khoảng trời riêng biệt, yên tĩnh và đầy cảm hứng. Bước lên những bậc thang tinh tế, bạn sẽ bắt gặp một phòng sinh hoạt chung được thiết kế theo lối không gian mở, sở hữu tầm nhìn đắt giá xuống phòng khách phía dưới nhờ hệ thống lan can kính trong suốt. Nhờ thiết kế thông tầng, không gian này luôn đón trọn ánh sáng tự nhiên và luồng gió mát lành, trở trành nơi lý tưởng để cả gia đình quây quần xem phim, đọc sách hoặc đơn giản là cùng nhau trò chuyện sau một ngày dài.
Sự tinh tế của kiến trúc sư còn thể hiện ở việc bố trí một nhà vệ sinh riêng biệt ngay trên tầng lửng. Được đặt khéo léo ở góc nhà, nhà vệ sinh này không chỉ đảm bảo sự tiện nghi tối đa, giúp các thành viên không phải di chuyển xuống tầng trệt hay lên các lầu cao, mà còn được ốp lát bằng vật liệu hiện đại, đảm bảo sự sạch sẽ và thông thoáng. Tầng lửng lúc này không chỉ là một không gian chuyển tiếp mà thực sự trở thành một “trạm dừng chân” đầy thư giãn, nơi giao thoa giữa nét sang trọng và công năng sử dụng hoàn hảo.

Cách bố trí công năng tầng lửng
Lầu 1 – Không gian nghỉ ngơi riêng tư
Tiến lên không gian lầu 1, bạn sẽ hoàn toàn choáng ngợp trước một phòng ngủ master quyền năng, được thiết kế để chiếm trọn diện tích mặt sàn phía trước. Nhờ lợi thế mặt tiền 5m, căn phòng sở hữu hệ cửa kính kịch trần mở ra ban công lộng gió, nơi những vạt nắng sớm và mảng xanh của bồn hoa bên ngoài len lỏi vào tận giường ngủ, mang đến nguồn năng lượng tươi mới mỗi ngày. Với diện tích rộng rãi, bạn có thể dễ dàng bài trí từ hệ tủ quận áo kịch trần sang trọng đến bàn trang điểm tinh tế, tạo nên một “resort thu nhỏ” đầy riêng tư và thư giãn.

Cách bố trí công năng lầu 1
Lầu 2 – Không gian phòng ngủ
Thiết kế không gian lầu 2 tương tự lầu 1. Sự thông minh trong mặt bằng cả hai lầu nằm ở việc bố trí nhà vệ sinh nằm hoàn toàn bên ngoài căn phòng. Thiết kế này là một bước tính toán đầy chiến lược, giúp không gian nghỉ ngơi bên trong luôn khô thoáng, tuyệt đối không bị ảnh hưởng bởi hơi ẩm hay mùi, đồng thời tạo sự thuận tiện tối đa cho khách ghé thăm hoặc khi gia đình cần sử dụng chung mà không xâm phạm vào quyền riêng tư của phòng ngủ. Khu vực WC ngoài được trang bị nội thất cao cấp với gạch ốp màu trung tính, không chỉ tối ưu về công năng mà còn góp phần nâng tầm vẻ đẹp hiện đại và sự ngăn nắp cho cả tầng lầu.

Cách bố trí công năng lầu 2
Tầng thượng – Khu vực giải trí ngoài trời
Vươn đến điểm cao nhất của ngôi nhà là tầng tum và sân thượng – nơi được mệnh danh là “lá phổi xanh” và là không gian tâm linh tĩnh lặng của cả gia đình. Phòng thờ được bố trí trang trọng ngay tại phần tum, tọa lạc ở vị trí cao nhất, hội tụ sinh khí và đảm bảo sự tôn nghiêm tuyệt đối theo phong thủy. Với thiết kế cửa mở ra phía trước, không gian thờ tự luôn nhận được ánh sáng tự nhiên, tạo cảm giác thông thoáng và thanh tịnh, tách biệt hoàn toàn khỏi sự ồn ào của nhịp sống phố thị bên dưới.
Bước ra khỏi phòng thờ là khoảng sân thượng phía trước ngập tràn sắc xanh, một không gian thư giãn lý tưởng mà bất kỳ gia chủ nào cũng ao ước. Những bồn hoa và cây cảnh được sắp xếp khéo léo dọc theo lan can, kết hợp cùng hệ khung pergola phía trên tạo nên một khu vường treo đầy thơ mộng.
Sự kết hợp giữa nét trang trọng của phòng thờ và sự tươi mới của cây xanh sân thượng đã tạo nên một kết thúc hoàn hảo cho công trình xây dựng nhà phố, mang lại sự cân bằng trọn vẹn giữa đời sống tâm linh và giá trị hưởng thụ thượng lưu.

Cách bố trí công năng sân thượng
Mẫu nhà 3 tầng rưỡi diện tích 5x8m là minh chứng cho việc diện tích nhỏ vẫn có thể xây dựng được không gian sống đẳng cấp. Nếu bạn đang sở hữu một lô đất tương tự, đừng ngần ngại đầu tư vào thiết kế để có một tổ ấm trọn vẹn nhất. Bạn đag cần tư vấn chi tiết hơn về bản vẽ kỹ thuật hoặc báo giá xây nhà trọn gói cho mẫu nhà này? Hãy liên hệ ngay đến Việt Nhật Group để được hỗ trợ nhanh nhất!
Từ khóa: xay nha | công ty xây nhà | sửa nhà trọn gói | sửa nhà | xây nhà phần thô | giá xây dựng phần thô







































































