Xây dựng nhà 5 tầng có thang máy, bạn tìm kiếm mẫu nhà như thế nào?
Mẫu nhà phố 1 trệt lửng 3 lầu tum sân thượng 6x16m có thang máy dưới đây là lựa chọn lý tưởng cho chủ đầu tư đang tìm kiếm một không gian sống hiện đại, tiện nghi và phù hợp với nhịp sống tại TP.HCM. Thiết kế mặt tiền thanh thoát, sang trọng kết hợp bố trí công năng khoa học giúp ngôi nhà tối ưu hóa không gian, tăng tiện ích sử dụng và mang lại giá trị sống đẳng cấp.

Thiết Kế Nhà Có Thang Máy – Mẫu Nhà 5 Tầng 6x16m
Mẫu nhà 5 tầng mặt tiền 6m – Hiện đại, sang trọng và tinh tế
Nhà phố 5 tầng hiện đại nổi bật với phong cách hiện đại, tối giản nhưng đầy cuốn hút. Mảng tường trắng chủ đạo kết hợp lam gỗ trang trí tạo nên điểm nhấn nhẹ nhàng nhưng không kém phần sang trọng. Hệ cửa kính lớn trải dọc các tầng giúp lấy sáng tự nhiên tối đa, đồng thời tăng cảm giác thoáng rộng cho toàn bộ không gian bên trong.
Tầng trệt sử dụng đá ốp mặt tiền cao cấp, tạo sự bề thế, vững chắc, phù hợp với công trình xây dựng nhà phố có mật độ cao tại TP.HCM.
Thiết kế lô gia nhỏ xen kẽ cây xanh tạo cảm giác thư giãn, giúp mặt tiền thêm phần mềm mại và gần gũi với thiên nhiên. Thiết kế khối hình học vuông vức, đường nét dứt khoát tạo nên tổng thể hiện đại và đầy năng lượng.

Mẫu nhà 5 tầng mặt tiền 6m – Hiện đại, sang trọng và tinh tế
Tối ưu diện tích – Tận dụng tối đa tiện ích
Xây nhà trọn gói – quy mô xây dựng 1 trệt lửng 3 lầu tum sân thượng 6x16m để ở kết hợp kinh doanh, KTS Việt Nhật Group bố trí công năng các tầng như thế nào?
Tầng 1: Không gian đón tiếp linh hoạt
Mẫu nhà phố 5 tầng có sân trước là phương án thiết kế thông minh cho nhà ở kết hợp kinh doanh, không gian phía trước ngôi nhà thuận tiện để xe máy gọn gàng. Sảnh rộng trong nhà phù hợp để bố trí sảnh tiếp khách phía trước và khu làm việc phía sau, hoặc sử dụng để cho thuê mặt bằng kinh doanh – phù hợp với đa dạng mặt hàng. WC bố trí cuối nhà tạo sự sạch sẽ và riêng tư.
Thiết kế thang máy là cần thiết đối với mẫu nhà ở kết hợp kinh doanh, giúp việc di chuyển dễ dàng và tạo không gian riêng tư hơn cho từng không gian. Không gian tầng 1 được thiết kế để dễ dàng kết hợp vừa ở – vừa kinh doanh, mang lại giá trị sử dụng cao cho chủ đầu tư.

Bản vẽ thiết kế kiến trúc tầng 1
Tầng lửng: Nơi gia đình sum họp
Phòng khách, phòng bếp – ăn thiết kế mở, mang đến không gian rộng mở, không bị giới hạn khi sử dụng trên cùng một không gian. Thiết kế tinh tế, có cửa sổ thoáng sáng giúp căn phòng trở nên sang trọng và rộng rãi hơn. Bố trí thêm WC tích hợp thuận tiện cho sinh hoạt tại khu vực. Thiết kế tầng lửng vừa tăng diện tích sử dụng, vừa mang lại cảm giác thoáng – cao – mở rộng hơn, rất được ưa chuộng tại TP.HCM.

Bản vẽ thiết kế kiến trúc tầng lửng
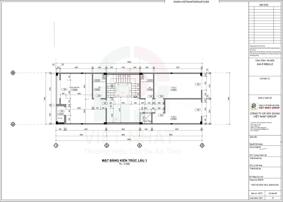
Tầng 2: Khu vực nghỉ ngơi chính
Tầng 2 là không gian nghỉ ngơi hoàn hảo, đảm bảo sự yên tĩnh và riêng tư cho gia đình. KTS bố trí phòng ngủ master hướng mặt tiền, thiết kế thêm lô gia, vừa tạo vẻ đẹp thẩm mỹ cho mặt tiền vừa mang đến không gian thông thoáng cho căn phòng, sử dụng WC riêng trong căn phòng. Hai phòng ngủ đơn phù hợp cho cái hoặc người thân sử dụng nghỉ ngơi và tận hưởng cuộc sống.

Bản vẽ thiết kế kiến trúc tầng 2
Tầng 3 & 4: Sảnh trống linh hoạt
Với thiết kế trọn gói linh hoạt, chủ đầu tư dễ dàng tùy biến để tối ưu giá trị kinh doanh của ngôi nhà. Hai tầng này được giữ nguyên sảnh trống, trở thành “tài sản chiến lược” cho chủ đầu tư:
- Thiết kế thi công phòng gym
- Phòng làm việc
- Phòng giải trí
- Khu căn hộ mini cho thuê
- Studio cá nhân
- Kho chứa đồ

Bản vẽ thiết kế kiến trúc tầng 3 – tầng 4
Tầng thượng: Chuẩn mực tiện nghi nhà phố hiện đại
Một không gian cao nhất, chứa đựng sự trọn vẹn – thoáng đãng – thư thái, đáp ứng mọi nhu cầu sinh hoạt của cư dân. Thiết kế phòng thờ thoáng đãng, hướng mặt tiền đáp ứng yếu tố phong thủy của ngôi nhà. Sân thượng trước là khu vực lý tưởng để trồng cây xanh, thưởng thức trà để thư giãn, nghỉ ngơi sau thời gian làm việc mệt mỏi. Sân sau bố trí khu vực giặt phơi tách biệt, sạch sẽ, riêng tư khi sử dụng.

Bản vẽ thiết kế kiến trúc tầng thượng
Vì sao chủ đầu tư nên xây nhà trọn gói theo mẫu nhà 5 tầng này?
- Thiết kế tối ưu cho xây dựng nhà tại TP.HCM: Phù hợp với đa số lô đất mặt tiền 6m hiện nay.
- Sử dụng thang máy – Tiện nghi và đẳng cấp: Giúp gia đình nhiều thế hệ di chuyển dễ dàng, đồng thời tăng giá trị khi cho thuê hoặc kinh doanh.
- Công năng linh hoạt – Nhiều giá trị khai thác: Tận dụng các tầng để kinh doanh, cho thuê hoặc mở văn phòng
- Thi công trọn gói – Kiểm soát chi phí xây nhà chặt chẽ: Không lo phát sinh, đúng thiết kế, đúng tiến độ, đúng chất lượng.
- Thẩm mỹ cao – Không lo lỗi thời: Thiết kế hiện đại, bền vững, mang lại giá trị sử dụng lâu dài.
Mẫu nhà 5 tầng có thang máy – Lý tưởng cho chủ đầu tư TPHCM
Mẫu nhà 1 trệt lửng 3 lầu tum sân thượng 6x16m có thang máy phù hợp với:
- Chủ đầu tư muốn ở sang – cho thuê tốt – tận dụng tối đa diện tích đất
- Gia đình có người lớn tuổi, cần di chuyển bằng thang máy
- Nhà phố vừa ở vừa kinh doanh
- Chủ đầu tư muốn tối ưu giá xây nhà thông qua dịch vụ thiết kế – thi công nhà trọn gói
Một ngôi nhà đẹp không chỉ là nơi để ở, mà còn là tài sản mang giá trị đầu tư lâu dài, đặc biệt trong bối cảnh thị trường bất động sản TPHCM ngày càng sôi động.
Nếu bạn cần hồ sơ thiết kế thi công đầy đủ của mẫu nhà 1 trệt lửng 3 lầu tum sân thượng 6x16m, liên hệ việt Nhật Group để được hỗ trợ miễn phí, tận tâm!
Từ khóa: xay nha | báo giá xây nhà | sửa nhà trọn gói | báo giá sửa nhà trọn gói | giá xây dựng phần thô | xây nhà phần thô




































![[Dự Án Mới] Ký Hợp Đồng Thi Công Trọn Gói Nhà Tân Cổ Điển](https://vietnhatgroup.com/wp-content/uploads/2026/04/Ky-Hop-Dong-Thi-Cong-Tron-Goi-Nha-Tan-Co-Dien-2.jpg)

































