Mẫu nhà phố 3 tầng diện tích 100m2 sẽ có bố trí công năng như thế nào? Thời gian thi công xây dựng bao lâu?
Sau hơn 90 ngày thi công xây dựng, công trình nhà phố 3 tầng gia đình Nam huyện Nhà Bè diện tích 5.5x20m chính thức bàn giao. Công trình là ngôi nhà 3 tầng được thiết kế theo phong cách hiện đại gồm: 01 phòng khách, 01 nhà bếp, 03 phòng ngủ, 01 phòng thờ, nhà vệ sinh đáp ứng nhu cầu sinh hoạt cho gia đình có 5 thành viên.
Công trình nhà phố 3 tầng của gia đình anh Nam là một trong những công trình tiêu biểu do Việt Nhật Group thiết kế, thi công xây dựng. Và để giúp Quý vị có cái nhìn tổng quan hơn hãy cùng khám phá hình ảnh hoàn thiện ngôi nhà trong bài viết dưới đây.
Thông tin công trình:
|
Chủ đầu tư: |
Anh Nam |
|---|---|
| Vị trí công trình: | KP5, thị trấn Nhà Bè, huyện Nhà Bè, TP.HCM |
| Quy mô: | Nhà phố 3 tầng |
| Diện tích: | 5.5x20m |
| Dịch vụ: | Xây nhà trọn gói |
| Thiết kế và thi công | Việt Nhật Group |
>>> Mời Quý vị xem thêm liên kết:
- Bảng đơn giá xây nhà cấp 4 trọn gói năm 2025
- Bảng đơn giá thi công nhà phố tại TP.HCM
- Báo giá sửa nhà trọn gói chi tiết, chính xác
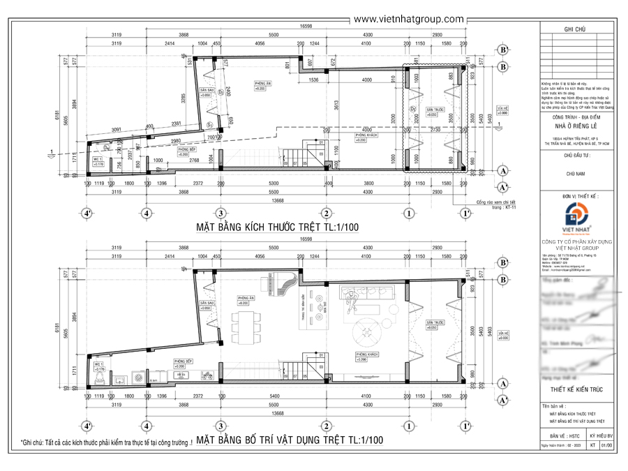
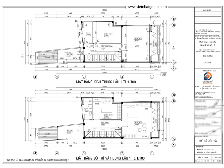
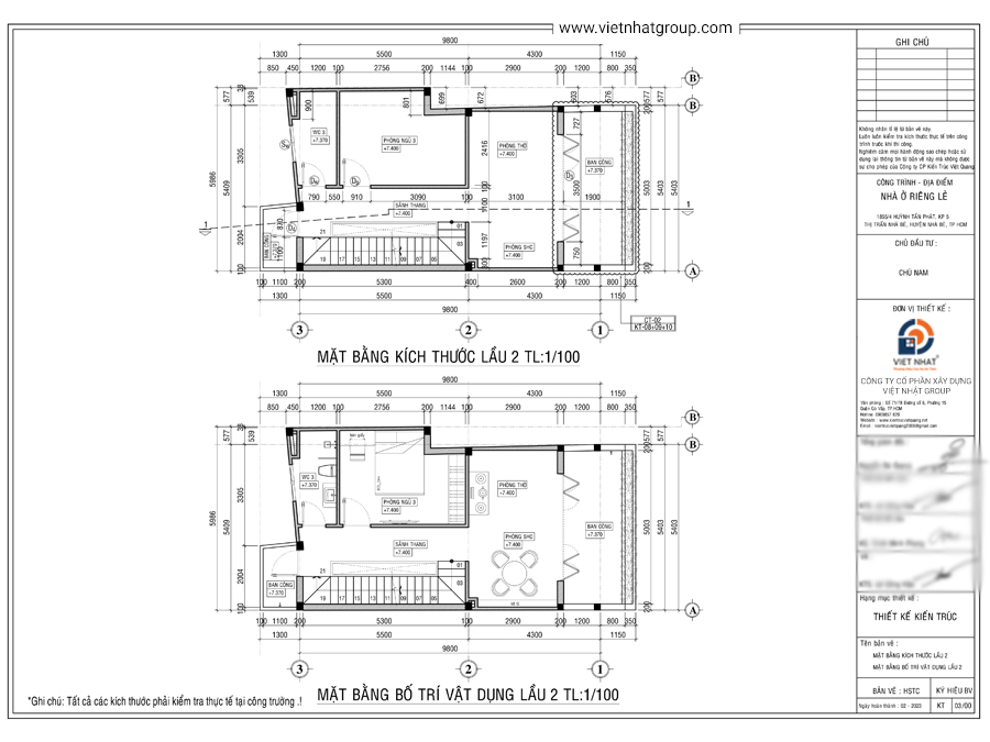
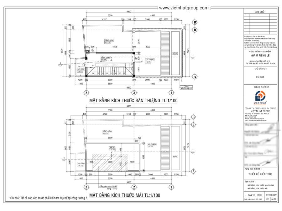
Ngôi nhà sử hữu mặt tiền rộng 5.5m được bố trí công năng khoa học
Lắng nghe nhu cầu, mong muốn của gia đình về nhà phố 1 trệt 2 lầu sân thượng, Kiến trúc sư giàu kinh nghiệm của Việt Nhật Group hỗ trợ thiết kế phối cảnh 3D mặt tiền ngôi nhà, bố trí công năng sử dụng chi tiết trên bản vẽ thiết kế kiến trúc 2D, điều chỉnh các hạng mục công trình cho đến khi phù hợp với nhu cầu sử dụng thực tế của gia đình.
Ngôi nhà 3 tầng được bố trí công năng dựa trên số lượng thành viên, nhu cầu sinh hoạt, các tiện ích đáp ứng nhu cầu của gia đình anh Nam. Chi tiết bố trí công năng các tầng xin mời quý vị cùng xem hình ảnh bên dưới.
Công trình nhà phố 3 tầng gia đình anh Nam sử dụng dịch vụ thi công xây dựng trọn gói của Việt Nhật, do đó gia đình anh được miễn phí khảo sát, tư vấn, thiết kế kiến trúc, bóc tách khối lượng,… Đặc biệt, lựa chọn Việt Nhật Group thiết kế và thi công gia đình anh Nam được cam kết đảm bảo về chất lượng, thẩm mỹ, tiến độ thi công và cam kết không phát sinh thêm chi phí trong suốt quá trình thi công.
Ngôi nhà hoàn thiện và bàn giao cho gia đình anh Nam sau hơn 90 thi công xây dựng
Nhà phố 3 tầng mặt tiền 5.5m phong cách hiện đại mang đến vẻ đẹp trẻ trung, hiện đại nhưng không kém phần tinh tế và thu hút. Ngôi nhà sử dụng lam sóng trang trí mái hiên tăng thêm vẻ đẹp cho không gian, đồng thời cũng là điểm nhấn giúp ngôi nhà trở nên hài hòa và gần gủi hơn với thiên nhiên. Chúng ta hãy cùng ngắm nhìn không gian nhà anh Nam Nhà Bè sau hơn 90 thi công đã chính thức hoàn thành và được bàn giao cho gia đình.
Mẫu nhà phố 3 tầng gia đình anh Nam Nhà Bè có làm Quý vị ưng ý chưa ạ? Nếu Quý vị mong muốn có một ngôi nhà đẹp, hoàn mỹ như nhà Anh Nam thì đừng ngần ngại gọi ngay 096 1319 335 để được Việt Nhật Group tư vấn hỗ trợ và báo giá chi tiết nhé!
Công ty cổ phần xây dựng Việt Nhật Group – Công ty xây dựng uy tín với hơn 13 năm hoạt động trong lĩnh vực thiết kế, thi công xây dựng nhà khắp các quận huyện TP. Hồ Chí Minh và các tỉnh miền Nam. Chúng tôi luôn cam kết chất lượng, tiến độ thi công trong từng công trình. Đặc biệt, luôn chú trọng vào các chính sách bảo hành sau thi công nhờ đó cái tên Việt Nhật Group luôn nhận được sự tin tưởng và đánh giá cao từ khách hàng.
Ở Việt Nhật chúng tôi còn có các chương trình khuyến mại hấp dẫn như: Miễn phí xin giấy phép xây dựng, thiết kế kiến trúc, hỗ trợ thủ tục hoàn công, các phần quà giá trị khi bàn giao nhà,… Quý khách hàng có nhu cầu vui lòng liên hệ Việt Nhật Group để được sử dụng các dịch vụ chất lượng và các chương trình khuyến mại đặc biệt.
Từ khóa: xây dựng nhà | xây dựng phần thô | xây nhà cấp 4 | sửa chữa nhà | sua nha nang tang | cải tạo nhà chung cư | sửa nhà cấp 4
















































































