Mẫu nhà 3 tầng tum sân thượng hiện đại, diện tích 4x14m được triển khai xây dựng như thế nào? Để bắt đầu kế hoạch xây nhà tại TP.HCM, bạn cần xin phép xây dựng, xác định mục đích xây nhà, quy mô công trình, phong cách thiết kế, lựa chọn vật liệu chất lượng, chuẩn bị mức đầu tư hợp lý và đơn vị xây nhà uy tín.
Gia đình Chị Hồng lựa chọn xây nhà trọn gói, chuyên gia xây dựng hàng đầu của chúng tôi hỗ trợ gia đình tất cả các công việc cần thiết cho kế hoạch xây nhà được tiến hành thuận lợi. Với kiến thức dày dặn và kinh nghiệm chuyên môn cao, công việc được triển khai chính xác, nhanh chóng. Miễn phí giấy phép xây dựng, hồ sơ thiết kế thi công, phối cảnh 3D, hoạch toán ngân sách đầu tư xây nhà trọn gói và hỗ trợ các thụ tục pháp lý cần thiết.
Thông tin dự án:
|
Chủ đầu tư: |
Ông. Liêu Thiệu Vệ – Bà. Trần Mỹ Hồng |
|---|---|
|
Vị trí công trình: |
Quận 5 – TP.HCM |
|
Quy mô công trình: |
Nhà 1 trệt 2 lầu tum sân thượng |
|
Diện tích đất: |
4x14m |
| Dịch vụ: | Xây nhà trọn gói |
| Mẫu nhà: | Nhà phố hiện đại |
| Thiết kế thi công: | Việt Quang Group |
| Giám đốc dự án: |
Ông. Phạm Văn Linh |

Ký hợp đồng xây nhà trọn gói cùng Chị Hồng ở Quận 5
>>> Mời Quý vị xem thêm liên kết:
- Chi phí sửa chữa nhà trọn gói tại TP.HCM năm 2025
- Đơn giá xây nhà phần thô 2025
- Báo giá xây nhà cấp 4 trọn gói mới nhất
Bố trí công năng nhà 4 tầng 4x14m
Nhà 1 trệt 2 lầu tum sân thượng 4x14m cung cấp bao nhiêu phòng ngủ? Đối với nhu cầu sử dụng của gia đình Chị Hồng, ngôi nhà được sắp xếp gồm 04 phòng ngủ và một số phòng công năng cần thiết cho một căn nhà hoàn chỉnh. Cụ thể:

Mẫu nhà 3 tầng tum sân thượng 4x14m
Cách bố trí công năng tầng trệt
KTS thiết kế không gian phòng khách ở hướng mặt tiền tầng trệt, đặt cầu thang ở hướng song song với cửa ra vào, đáp ứng yếu tố phong thủy giúp công việc thuận lợi, gia đình hạnh phúc. Bố trí phòng ngủ dành cho khách ở vị trí tầng trệt không chỉ tạo sự riêng tư cho các thành viên mà còn giúp khách thoải mái nghỉ ngơi trong căn phòng. Vị trí khu vực phía sau được thiết kế để đặt kho chứa đồ, thuận tiện cất giữ các vật dụng ít sử dụng của gia đình.

Cách bố trí công năng tầng trệt
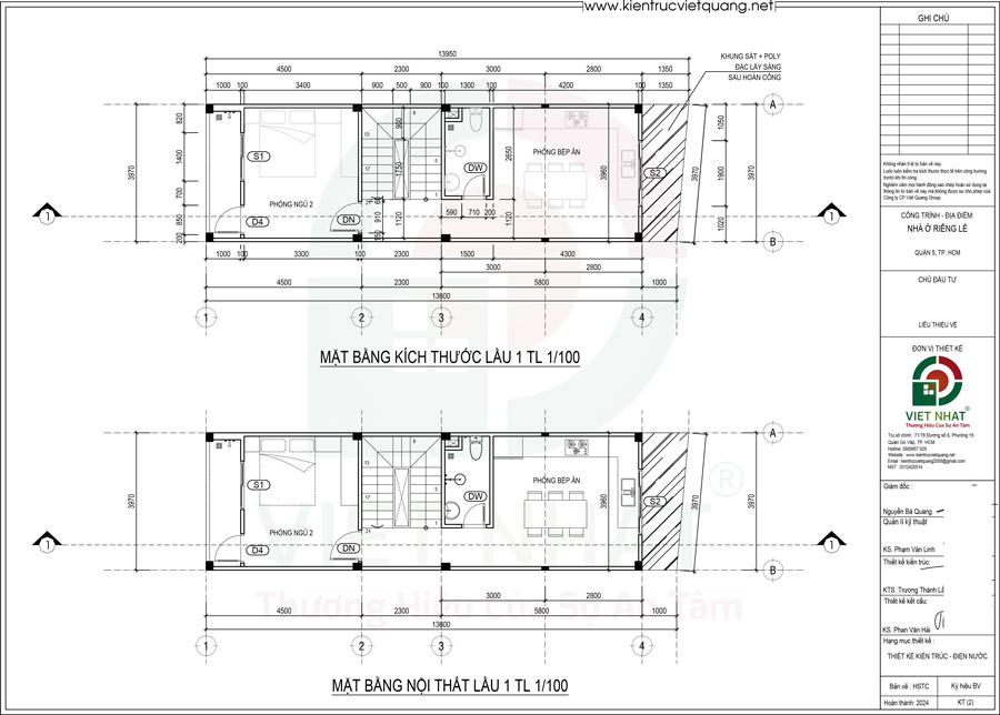
Cách bố trí công năng lầu 1
Để thuận tiện cho nhu cầu sinh hoạt, ăn uống riêng tư của các thành viên trong gia đình, KTS đặt phòng bếp ở khu vực phía sau lầu 1. Khoảng lùi sau nhà tạo điều kiện thuận lợi cho các căn phòng hướng mặt tiền sau dễ dàng đón nắng và lưu thông không khí tự nhiên trong phòng. WC được sử dụng cho phòng ngủ và phòng bếp.

Cách bố trí công năng lầu 1
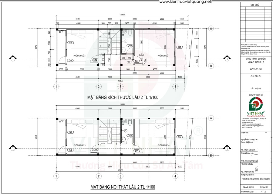
Cách bố trí công năng lầu 2
Đáp ứng đủ công năng sử dụng cho các thành viên, lầu 2 thiết kế hai phòng ngủ rộng rãi. Thiết kế WC sử dụng chung cho cả hai căn phòng giúp tiết kiệm diện tích xây dựng, mang đến không gian nghỉ ngơi thoải mái hơn. Phòng ngủ hướng mặt tiền nhà sở hữu ban công đón nắng, bố trí thêm hệ thực vật không chỉ tạo quang cảnh cho ngôi nhà mà còn hỗ trợ cải thiện sức khỏe thể chất và tinh thần cho các thành viên.

Cách bố trí công năng lầu 2
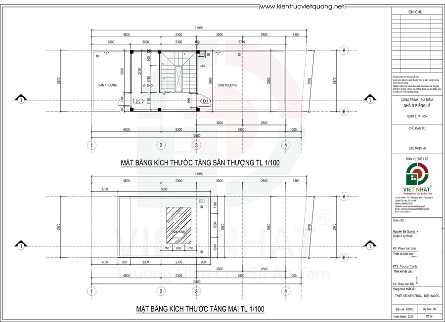
Cách bố trí công năng tầng thượng
Tầng thượng nhà 1 trệt 2 lầu tum sân thượng 4x14m, KTS bố trí phòng thờ bên trong khu vực tum che thang để đảm bảo đáp ứng đủ công năng sử dụng gia đình, tối ưu hóa diện tích sử dụng các phòng chức năng. Sân thượng trước sau mang đến không gian thoáng mát ngoài trời để các thành viên tổ chức các bữa tiệc, buổi trà đạo và bắt đầu bằng một ngày đầy năng lượng.

Cách bố trí công năng tầng thượng
Công trình xây dựng nhà 4 tầng Chị Hồng ở Quận 5
Xây nhà 4 tầng hiện đại trong bao lâu? Công trình xây dựng nhà phố 1 trệt 2 lầu sân thượng 4x14m ở quận 5 của Chủ đầu tư Anh Vệ – Chị Hồng dự kiến hoàn thành xây nhà trọn gói trong 90 ngày thi công. Quá trình xây dựng được triển khai, báo cáo thi công, kiểm tra và nghiệm thu ở từng hạng mục công trình để đảm bảo mang đến một sản phẩm nhà đẹp, chất lượng nhất.

Khởi công xây dựng nhà Chị Hồng ở Quận 5
Thi công xây móng nhà 4 tầng
Đối với công trình xây nhà Chị Hồng, đội ngũ Việt Quang Group lựa chọn giải pháp thi công móng cọc. Điều này không chỉ mang đến kết cấu vững chắc, ổn định nhà ở trên nền móng mà còn giúp tối ưu hóa chi phí đầu tư xây nhà cho gia đình.
Triển khai xây dựng nhà phố 4 tầng hiện đại gồm các công việc, ép cọc, đào móng, xây gạch chân móng, thi công giằng móng, dầm móng, bê tông lót móng, lắp đặt ống thoát nước, thi công chống hôi. Hoàn thành xây móng, đội ngũ Việt Quang Group cùng Chủ đầu tư tiến hành kiểm tra và nghiệm thu hạng mục trước khi bắt đầu hạng mục xây dựng tiếp theo.

Hình ảnh thi công xây gạch đinh hầm tự hoại

Hình ảnh thi công tô tường hầm tự hoại

Hình ảnh thi công xây tường chân móng

Hình ảnh thi công giằng thép móng

Hình ảnh thi công san phẳng mặt bằng nền móng
Thi công xây thô nhà 3 tầng
Quá trình xây dựng nhà từ nền móng, công ty xây nhà trọn gói tính toán kết cấu xây dựng và thiết kế bản vẽ kiến trúc chi tiết để tạo nên mẫu nhà hoàn hảo, phù hợp nhu cầu xây nhà của gia đình. Kết cấu xây dựng được xét duyệt kỹ lưỡng bởi đội ngũ chuyên môn có thẩm quyền, đảm bảo công trình ổn định, bền vững theo thời gian.
Thi công tầng trệt
Hoàn thành sắt thép sàn trệt (đà kiềng, giằng móng, sắt sàn) công ty xây nhà và chủ đầu tư tiến hành nghiệm thu trước khi đổ bê tông sàn trệt, để đảm bảo đơn vị thi công sử dụng đúng vật liệu, thi công đúng kỹ thuật, đúng bản vẽ kết cấu xây nhà.

Hình ảnh thi công thép sàn

Hình ảnh thi công bảo dưỡng bê tông sàn

Hình ảnh thi công bảo dưỡng tường gạch

Hình ảnh tiến độ thi công tầng trệt nhà 3 tầng
Thi công lầu 1
Quá trình xây dựng phần thô lầu 1, đơn vị thi công gia công sắt sàn hai lớp, sử dụng cục kê bê tông để tách hai lớp sắt sàn, tăng hiệu quả kết cấu sàn bê tông cốt thép. Hạng mục thi công cầu thang cần cấy thêm râu thép để đảm bảo liên kết chắc chắn với kết cấu chính (dầm, sàn, cột) và tăng cường độ bền khi sử dụng.

Hình ảnh thi công sắt thép đà kiềng sàn lầu 1

Hình ảnh thi công sắt thép đà kiềng cầu thang bộ

Hình ảnh thi công bảo dưỡng tường gạch

Hình ảnh tiến độ thi công xây thô lầu 1 nhà 3 tầng
Thi công lầu 2
Hạng mục thi công xây thô lầu 2 triển khai các công việc tương tự các tầng đã thi công trước, gia công lắp dựng cốp pha, thi công cốt thép, đổ bê tông, dựng cột bê tông cốt thép, xây tường bao, đổ cột bổ trụ, bảo dưỡng công trình theo đúng kỹ thuật.

Hình ảnh thi công sắt thép đà kiềng

Hình ảnh thi công đổ bê tông sàn lầu 2

Hình ảnh thi công xây tường bao lầu 2

Hình ảnh tiến độ thi công lầu 2 nhà 3 tầng
Thi công tum sân thượng
Đối với công trình xây dựng nhà phố, hạng mục thi công tầng thượng cần chú trọng trong an toàn lao động, đảm bảo an toàn cả về vật chất và con người. Công ty xây nhà tổ chức huấn luyện an toàn lao động định kỳ vào ngày 14 và ngày 28 hàng tháng, lưu ý những điểm quan trọng để thi công an toàn.

Hình ảnh thi công sắt thép sàn sân thượng

Hình ảnh thi công đổ bê tông mái che tum

Hình ảnh tiến độ xây dựng phần thô nhà 3 tầng tum sân thượng
Thi công xây thô khác
Giai đoạn cuối cùng của hạng mục xây dựng phần thô nhằm hoàn thiện kiến trúc ngôi nhà và gia cố kết cấu xây dựng, tăng khả năng chống nứt, chống thấm cho ngôi nhà. Công việc bao gồm, xây tường ngăn phòng, đóng lưới mắt cáo tô tường chống nứt, tô tường, chống thấm (sân thượng, ban công, WC, mái, cổ ống), đóng trần thạch cao, chuẩn bị bước sang giai đoạn hoàn thiện nhà ở.

Hình ảnh thi công xây tường ngăn phòng

Hình ảnh thi công chống nứt tường

Hình ảnh thi công tô trát tường

Hình ảnh thi công trần thạch cao

Hình ảnh thi công chống thấm cổ ống

Hình ảnh thi công chống thấm
Thi công hoàn thiện nhà 3 tầng
Giai đoạn hoàn thiện nhà xây thô là bước quan trọng quyết định tính thẩm mỹ của ngôi nhà, từ vật liệu hoàn thiện, màu sắc, cho đến kỹ thuật thi công. Kế hoạch lựa chọn màu sắc và chủng loại vật liệu được tính toán và thiết kế trên bản vẽ phối cảnh 3D chi tiết để chủ đầu tư chọn được mẫu nhà phù hợp. Tuy nhiên trong quá trình xây dựng, gia chủ có thể đề xuất thay đổi theo nhu cầu.

Hình ảnh thi công ốp lát gạch sân thượng

Hình ảnh thi công bả tường

Hình ảnh thi công lan can cầu thang

Hình ảnh thi công lắp đặt cửa

Hình ảnh thi công nội thất phòng bếp
Nghiệm thu và bàn giao công trình
Hoàn thiện nhà ở, công ty xây nhà và chủ đầu tư tiến hành nghiệm thu và bàn giao công trình. Chủ đầu tư cần kiểm tra các hạng mục thi công trước khi ký xác nhận biên bản nghiệm thu và bàn giao công trình, đảm bảo ngôi nhà hoàn thiện đáp ứng đúng yêu cầu của gia chủ.

Hình ảnh bàn giao nhà 1 trệt 2 lầu tum sân thượng 4x14m

Hình ảnh bàn giao phòng khách

Hình ảnh bàn giao WC

Hình ảnh bàn giao cầu thang bộ

Hình ảnh bàn giao phòng ngủ

Hình ảnh bàn giao phòng ngủ

Hình ảnh bàn giao ban công

Hình ảnh bàn giao phòng ngủ

Hình ảnh bàn giao ô kính giếng trời

Hình ảnh bàn giao sân thượng

Hình ảnh bàn giao tum che thang
Nếu bạn đang tìm kiếm công ty xây nhà trọn gói uy tín tại TP.HCM, Việt Nhật Group hỗ trợ bạn tham quan công trình thực tế và tư vấn, báo giá xây nhà theo yêu cầu của bạn.
Từ khóa: giá xây nhà | sửa chữa nhà | nâng tầng nhà | giá sửa nhà chung cư | sửa nhà xưởng | sửa nhà cấp 4 | giá xây dựng phần thô | xây nhà cấp 4






























































